ГРИНЛОС Профи 10
Преимущества над конкурентами
Осаждение взвешенных частиц протекает до 4-х раз эффективнее, чем в обычном отстойнике, что позволяет достичь высоких показателей по переработке стоков.
Аноксидная камера Наличие аноксидной камеры предотвращает процесс вымывания активного ила при залповом сбросе, запускает процессы разложения соединений фосфора и азота.
Корпус септика ГРИНЛОС Профи 10 и материалы обвязки выполнены из полипропилена и полностью инертны к действию коррозийных сред.
Использование двух видом ила – свободного и фиксированного – позволяет увеличить интервал между плановым обслуживанием септиков ГРИНЛОС Профи 10.
Корпус станции переработки ГРИНЛОС Профи 10 оснащен обечайкой из полипропилена, наличие которой увеличивает прочность конструкции.
Материал изготовления станции очистки ГРИНЛОС Профи 10 – полипропилен - абсолютно герметичен и исключает просачивание жидкостей.
Особенности
ГРИНЛОС Профи 10 — станция биологической очистки с залповым сбросом 650 л и производительностью 2.2 м3/сутки, что позволяет устанавливать септик на территории, где количество постоянно проживающих не превышает 11 человек.
Использование полипропилена в качестве основного материала изготовления септика обуславливает его небольшой вес, всего 305 кг, что дает преимущество при транспортировке и монтаже системы.
Септик ГРИНЛОС Профи 10 обладает самотечным сбросом, то есть очищенная вода выводится за ее станции по наклонной трубе под действием силы тяжести. Такой вариант рекомендуется применять при наличии в точке сброса дренажного колодца, глубокого оврага или поля фильтрации. Важно, чтобы грунт на участке обладал высокой впитывающей способностью через которое вода сможет быстро уходить, не застаиваясь.
Модификации септика ГРИНЛОС Профи 10
| Характеристики | ГРИНЛОС Профи 10 | ГРИНЛОС Профи 10 Пр |
|---|---|---|
| Тип сброса | Самотечный | Принудительный |
| Способ установки | стандартная | с насосом |
| Размер Д*Ш*В, мм | 4000*1280*1780 | 4000*1280*1780 |
| Вес, кг | 305 | 305 |
| Глубина залегания подводящей трубы, см |
60 | 60 |
| Цена | 530 312 сом. | 541 643 сом. |
Комплект поставки
- Корпус «ГРИНЛОС Профи 10» (1 шт)
- Крышка (2 шт)
- Компрессор (1 шт)
- Блок биозагрузки (3 шт)
- Эрлифт (2 шт)
- Кассета блока осветления (2 шт)
- Аэратор (1 шт)
Эксплуатационная документация, в том числе:
- Технический паспорт «ГРИНЛОС Профи» (1 шт)
- Сертификат соответствия ГОСТ Р ИСО 9001-2015 (ISO 9001:2005) (1 шт)
- Сертификат соответствия системе ГОСТ Р (1 шт)
- Декларация соответствия ЕАС (1 шт)
Документация
Принцип работы
Станция биологической очистки ГРИНЛОС Профи 10 предназначена для расщепления и переработки основных органических загрязнений, содержащихся в бытовых сточных водах. Эти процессы происходят в результате жизнедеятельности аэробных микроорганизмов, условия для жизнедеятельности которых создает станция.
В станции реализована современная многоступенчатая технология переработки сточных вод, которая представляет собой полный цикл механико-биологической переработки и включает следующие этапы:
- Сток поступает в приемную камеру-накопитель. В данной камере происходит накопление нерастворимых взвешенных веществ, поступающих со сточными водами. Одновременно в данной камере происходят анаэробные процессы денитрификации, цель которых удаление азота из стока.
- Из приемной камеры-накопителя сток попадает в камеру преаэрации. где инициируются процессы аэробной переработки стока, а также происходит нитрификация стока.
Переливы в ГРИНЛОС Профи 10 расположены таким образом, чтобы сточные воды протекали с наименьшей скоростью, благодаря чему в каждой камере происходит оседание грубодисперсных взвешенных частиц на дно.
Также осуществляется перемешивание очищаемой воды и активного ила из илового отстойника с помощью системы крупнопузырчатой аэрации, что сводит к минимуму перенос кислорода воздуха в обрабатываемую жидкость.
- Затем стоки поступают в аэротенк, где размещена инертная биологическая загрузка, насыщаются кислородом, взаимодействуют с фиксированным активным илом. В процессе аэрации происходит разбиение крупных частиц на более мелкие, насыщение стоков кислородом, создание комфортных условий для жизнедеятельности аэробных микроорганизмов и бактерий. Благодаря аэрации, при поступлении стоков происходит постепенное образование из субстрата хлопьев активного ила.
- Из приемной камеры-накопителя сток попадает в камеру преаэрации где инициируются процессы аэробной переработки стока, а также происходит нитрификация стока.
- Далее, в камере ламинарного отстойника, происходит осаждение дополнительного осадка. Задержанный осадок вместе с предварительно нитрифицированным стоком возвращается в аноксидную камеру. Наличие аноксидной камеры в септике ГРИНЛОС Профи 10 предотвращает процесс вымывания активного ила при залповом сбросе, запускает процессы разложения соединений фосфора. Осаждение взвешенных частиц в ламинарном отстойнике протекает до 4-х раз эффективнее, чем в обычном отстойнике.
Доказанная эффективность ламинарного отстойника позволяет достичь высоких показателей по переработке стока от взвешенных частиц.
Также осуществляется перемешивание очищаемой воды и активного ила из илового отстойника с помощью системы крупнопузырчатой аэрации, что сводит к минимуму перенос кислорода воздуха в обрабатываемую жидкость.
Монтаж септика ГРИНЛОС Профи 10
При проектировании и монтаже септика ГРИНЛОС Профи 10 необходимо руководствоваться рекомендациями Технического паспорта септика, проектной документацией, рекомендациями проектировщиков, а также действующими нормами и правилами:
- СП 45.13330.2017 Земляные сооружения, основания и фундаменты;
- СП 70.13330.2012 Несущие и ограждающие конструкции;
- СП 49.13330.2010. Безопасность труда в строительстве;
- СП 22.13330.2016 Основания зданий и сооружений;
- СП 32.13330.2018 Канализация. Наружные сети и сооружения; актуальное издание ПУЭ (правила устройства электроустановок).
Лица, выполняющие монтаж, должны иметь опыт и необходимую квалификацию, подтвержденную документально, для проведения строительных работ, а также для использования необходимой для проведения работ техники, инструментов и механизмов. Лица, выполняющие монтаж, должны знать и соблюдать правила противопожарной и электробезопасности, правила техники безопасности и охраны труда. Выполняя строительные работы необходимо использовать средства индивидуальной защиты и строго соблюдать внутренние правила проведения работ на объекте.
Монтаж ГРИНЛОС Профи 10, оборудования и трубопроводов, а также пусконаладочные работы должны осуществлять организации и специалисты, имеющие соответствующую квалификацию, имеющие строительные лицензии Госстроя РФ на проведение соответствующих работ, а для работ, связанных с монтажом оборудования, предназначенного для опасных жидкостей, специалисты должны быть аттестованы по правилам промышленной безопасности Ростехнадзора.
Выбор места для установки ГРИНЛОС Профи 10
Станцию переработки ГРИНЛОС Профи 10 следует располагать так, чтобы к ней мог беспрепятственно подъехать ассенизационный автомобиль. При этом над отстойником и над септиком в радиусе 2,5 м не допускается движение и стоянка автотранспорта. При необходимости организации стоянки или проезда автотранспорта, необходимо оборудовать разгрузочную плиту над очистным сооружением и над подводящей и отводящей трассами.
При планировке участка для канализационной системы с использованием септика ГРИНЛОС Профи 10 следует учитывать следующие рекомендации:
- защитный разрыв от дома не менее 5 м;
- расстояние от дороги и границы земельного участка не менее 5 м;
- защитный разрыв от водоема не менее 30 м;
- расстояние до ближайшего водозаборного пункта не менее 150 м.
Указанные расстояния носят рекомендательный характер. Точные размеры, на которые влияет в т. ч. грунт и рельеф земельного участка, определяются в каждом конкретном случае отдельно в процессе проектирования канализации.
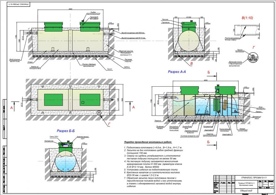
Схемы монтажа:
Эксплуатация и обслуживание ГРИНЛОС Профи 10
Для правильного, безаварийного функционирования станции биологической очистки ГРИНЛОС Профи 10, необходимо соблюдать правила эксплуатации и регулярно выполнять техобслуживание.
ЗАПРЕЩАЕТСЯ
- Проезд в радиусе 2,5 м от ГРИНЛОС Профи 10 и стоянка автотранспорта над всеми сооружениями септика.
- Поднимать уровень поверхности земли над станцией переработки без согласования с производителем или официальным представителем производителя.
- Cброс через септик воды из бассейнов, бытовых фильтров для очистки воды и т. п.
- Превышение залпового сброса.
- Сброс через станцию переработки ГРИНЛОС Профи 10 воды c повышенным содержанием солей (например, при обратной промывке фильтров).
- Сброс дезинфицирующих веществ.
- Отводить в септик дождевые и дренажные воды.
- Увеличение расхода воды свыше установленного для септика ГРИНЛОС Профи 10 на одного человека в размере до 200 л/сут.
- Использовать биологические препараты, предназначенные для прочистки тсом.
- Использовать биологические препараты, предназначенные для интенсификации работы септиков и очистных сооружений.
Не допускается наличие неисправного сливного устройства унитаза или смесителей, в результате неисправности которых происходит постоянная течь воды.
Не допускается использовать септикГРИНЛОС Профи 10 без вентиляции главного стояка подводящей канализационной сети.
Не допускается засорение и деформация вентиляционных воздуховодов.
Не допускается отключение септика от электропитания в период эксплуатации.
Удаление осадка из первичного отстойника должно производиться не реже одного раза в год.
ВНИМАНИЕ! Изделие должно быть заполнено водой в процессе монтажа одновременно с засыпкой (во избежание выхода из строя ГРИНЛОС Профи 10, запрещается заполнять водой камеру электрооборудования).
ЗАПРЕЩЕНО хранение смонтированного изделия в опорожненном состоянии. Хранение септика в опорожненном состоянии может привести к «всплытию» станции переработки или/и внутренним деформациям.
ВНИМАНИЕ! При подключении септика обязательно обеспечить заземление. Подключение питания следует выполнять через УЗО с номинальным током утечки 10 мА и током теплового расцепителя 6А.
Похожие товары
Фотогалерея выполненных монтажей
Остались вопросы? Свяжитесь с нами!
Мы всегда готовы бесплатно проконсультировать по вопросам, связанным с продукцией Гринлос, а также помочь с выбором оптимальной модели септика для решения ваших задач.
